M(-) Switch
Switch center automatic transmission, selector lever position Tiptronic Part 1:

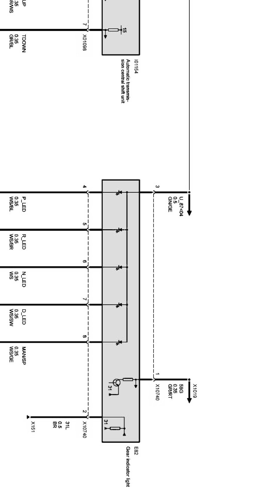
Switch center automatic transmission, selector lever position Tiptronic Part 2:

Switch center automatic transmission, selector lever position Tiptronic Part 3:

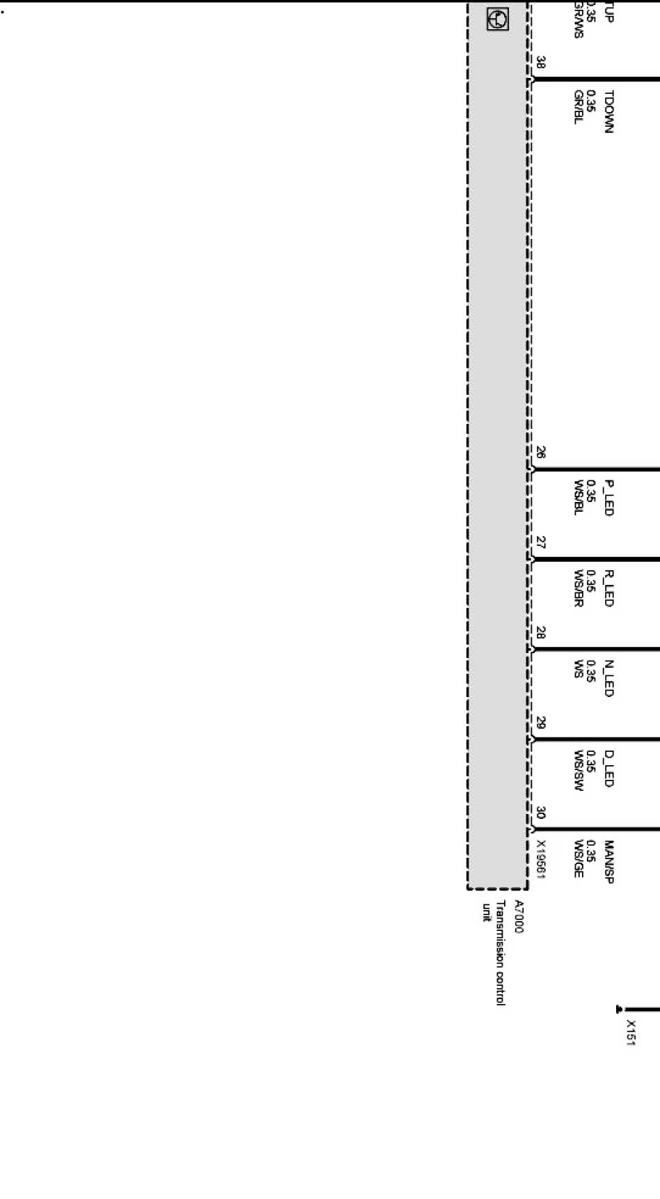
Switch center automatic transmission, selector lever position Tiptronic Part 4:
